Pawilony w Ostrowie
10 wrz. 2013 - 14:06 – red. wydania: wojtys@rc.fm
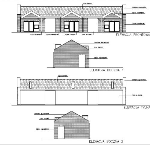
Nowa inwestycja ostrowskiej spółki Targowiska Miejskie. Po zagospodarowaniu Zielonego Rynku i skwerku przy Kolejowej, przyszedł czas na teren przy ul. Bema. W sąsiedztwie największego cmentarza powstaną nowe pawilony dla kwiaciarzy.
"Zastąpią wykorzystywane od lat mało atrakcyjne kioski" - powiedział Radiu Centrum prezes spółki Piotr Maraszek:
"To będą 3 murowane budynki, z dodatkowym zadaszeniem. Pawilony o łącznej powierzchni prawie 90 metrów kwadratowych przeznaczone są do całorocznego użytkowania. Już są podpisane umowy najmu z handlowcami, którzy użytkowali dotychczasowe kioski."
Pawilony mają być gotowe w październiku. Koszt inwestycji to 370 000 złotych.
Autor:

Personalia
- zeidler@rc.fm
Nazwisko:
Arleta Zeidler

Każde forum komentarzy umieszczone pod informacjami prasowymi na niniejszej stronie internetowej (www.rc.fm), nie jest moderowane w czasie rzeczywistym - komentarze nie są weryfikowane przed ich automatyczną publikacją. Nie jest dozwolone umieszczanie w ww. komentarzach: nazw i marek o charakterze komercyjnym, linków czy innego rodzaju przekierowań do innych stron internetowych i jakichkolwiek obiektów graficznych. Wpisy łamiące prawo należy zgłaszać na adres: adm@rc.fm. Wpisując jakikolwiek komentarz na niniejszej stronie internetowej (www.rc.fm), autor tego komentarza przyjmuje świadomie do wiadomości i świadomie akceptuje bezwarunkowe prawo właściciela niniejszej strony internetowej (www.rc.fm) do usunięcia lub modyfikacyjnego skrótu wpisanego komentarza oraz brak gwarancji zapewnienia ciągłości publikacji wpisanego komentarza, jako korespondencji niezamówionej przez właściciela niniejszej strony internetowej (www.rc.fm).





















